中文
中文
English
搜索
首页
关于我们
公司简介
企业文化
发展历程
主营业务
室内外恒温泳池水处理系统
温泉·水疗SPA水处理系统
中央空调·中央热水系统
海绵城市·水景 喷泉
工程案例
室内外恒温泳池水处理系统
温泉·水疗SPA水处理系统
中央空调·中央热水系统
海绵城市·水景 喷泉
产品中心
泳池热泵系列
空气源热泵系列
知识分享
新闻动态
联系我们
联系方式
客户留言
人才招聘
深圳铭洋中科能源技术有限公司
中
EN
首页
关于我们
公司简介
企业文化
发展历程
主营业务
室内外恒温泳池水处理系统
温泉·水疗SPA水处理系统
中央空调·中央热水系统
海绵城市·水景 喷泉
工程案例
室内外恒温泳池水处理系统
温泉·水疗SPA水处理系统
中央空调·中央热水系统
海绵城市·水景 喷泉
产品中心
泳池热泵系列
空气源热泵系列
知识分享
新闻动态
联系我们
联系方式
客户留言
人才招聘
首页
>
新闻动态
>
公司新闻
盐氯发生器
作者:
铭洋中科
时间:
2025-01-08
次数:
1235
(一)相关规范
1、盐氯发生器制取氯消毒剂应采用分流量循环系统,并应符合以下规定:盐氯发生器循环管道流量不应小于 1 m³/h ~ 2 m³/h;盐氯发生器应设流量控制装置;对池水进行消毒时,应在过滤设备之后加热工序之前设置盐氯发生器及其配套的水质监测等设备。
2、盐氯发生器应由盐氯发生控制器和极板模块组成,并应符合以下规定:①应能根据游泳戏水负荷、气候条件自动监测和控制盐氯发生器工作状态;②应能在线监控和自动投加所需盐量,制氯量输出应可调;高、低盐浓度应能够指示及报警;pH值和氧化还原电位(ORP)应能够显示,并高、低限值应能报警;电极钝化应能够报警,电极板应能够自动清洗,并应能记录运行情况及远程控制等;③应能极性自动反转消除电解所产生的结垢;④设备应为钛金属材质,且结构模块设计易于更换极板;⑤盐氯发生器与控制器的距离不应超过 2 m。
3、盐氯发生器采用的盐质量应符合现行[敏感词]标准《食品安全[敏感词]标准食用盐》GB2721的规定且为不含碘的高浓度盐。盐的投加量应确保池水的盐浓度不应小于 1500 mg/L。
4、盐氯发生器制取氯消毒剂适用于私人游泳池、中小型会所(俱乐部)游泳池及中小型成人游泳池。
5、室外池使用盐氯发生器制取消毒剂消毒池水时,应投加氰尿酸稳定剂.浓度宜控制在 30 mg/L ~ 60 mg/L范围内。
6、每座游泳池、水上游乐池设置的盐氯发生器不应少于 2 台。
(二)常见问题及解决方案
1、常见问题
次氯酸钠桶排气管连接位置不正确,应接在高处并引至室外;水处药品加药间应增加氯气排气管至室外。
2、解决方案
补充次氯酸钠系统安装大样图集,表达标准的施工工艺方法。补充水处药品加药间排气系统安装大样图集,表达标准的施工工艺方法。
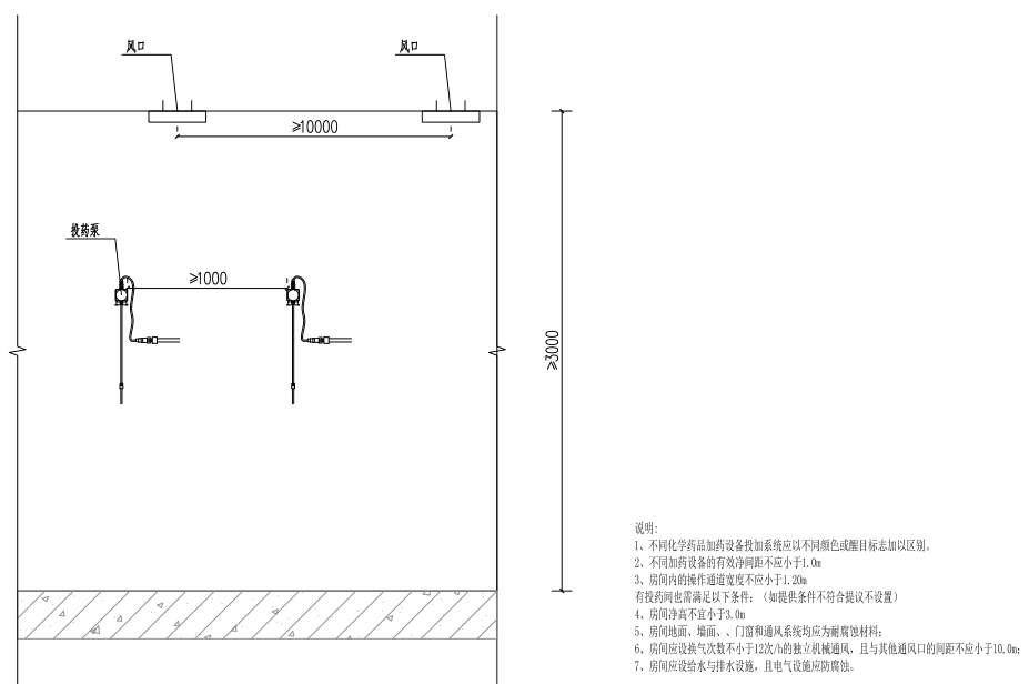
3、大样图
a. 次氯酸钠系统安装大样图集:
b. 水处药品加药间排气系统安装大样图集:
相关新闻
Related news
龙腾新程 启势2026 | 铭洋中科新春开工大吉!
2026-02-26
甲辰新春献词 | 铭洋中科:与您携手,共赴新程
2026-02-14
铭洋中科2025年度总结大会圆满举行
2026-02-11
上一页
返回
下一页
相关新闻
2026-02-26
龙腾新程 启势2026 | 铭洋中科新春开工大吉!
2026-02-14
甲辰新春献词 | 铭洋中科:与您携手,共赴新程
2026-02-11
铭洋中科2025年度总结大会圆满举行
2025-09-26
【荣誉加冕 品质见证】| 热烈庆祝我司荣获多项 AAA 级权威信用认证
2025-09-18
铭记历史,勿忘国耻!——九一八事变94周年纪念
2025-09-08
汗水映初心,协作筑未来——铭洋中科9.5日集体劳动纪实
2025-09-04
铭记历史,守护和平——铭洋中科职工观九三阅兵有感
2025-05-22
风雨同舟十四载,携手共筑同心圆!热烈祝贺深圳铭洋中科能源技术有限公司成立十四周年!
2025-01-25
投药系统
2025-01-23
铭洋中科召开2024年度核心员工工作总结暨跨部门协调座谈会
关于我们
公司简介
企业文化
发展历程
主营业务
室内外恒温泳池水处理系统
温泉·水疗SPA水处理系统
中央空调·中央热水系统
海绵城市·水景 喷泉
工程案例
室内外恒温泳池水处理系统
温泉·水疗SPA水处理系统
中央空调·中央热水系统
海绵城市·水景 喷泉
产品中心
泳池热泵系列
空气源热泵系列
知识分享
联系我们
电话:00755-28073773
邮箱:邮箱:szmyzk@126.com
网址:www.szmyzk.com
地址:深圳市福田区梅林路42号深政汽修大厦四层
关注我们