(一)补水水箱 游泳池采用顺流式池水循环净化处理系统且不设平衡水池时、循环水泵直接从池底回水口吸水时,应设置补水水箱,且补水水箱的出水管应与循环水泵吸水管相连接。补水水箱的有效容积应按以下规定确定:
1、单纯作补水用途时,应按计算补水量确定,且不应小于2.0m³。
2、同时兼作回收溢流水用途时,宜按10%的池水循环流量计算确定。
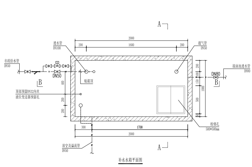
3、补水水箱的设计应符合以下规定:补水水箱进水管管径应按计算的补水量、溢流水流量确定,并应符合以下规定:进水管管底与水箱内高水位的间距应符合现行[敏感词]标准《建筑给水排水设计规范》GB50015的规定。补水箱进水管应装设阀门、水表。补水箱进水管与溢流水进水管宜分开设置。
4、补水水箱出水管应按以下规定确定:仅用于补水用途时,应按游泳池、水上游乐池的小时补水量确定。兼作溢流水回收用途时,应按游泳池、水上游乐池等小时补水量与小时溢流水量之和确定。出水管应装置阀门。当补水水箱水面低于游泳池、水上游乐池水面时,出水管还应装设止回阀。
5、当补水水箱兼作初次和再次充水隔断水箱时,宜另行配置进水管和出水管。补水进水管和出水管管径应按计算确定。
6、补水箱应设置人孔、通气管、溢流管、泄水管及水位计。当水箱有效水深大于1.5m时,应设内外扶梯。
7、补水水箱应采用不污染水质、耐腐蚀、不变形和高强度材料,并应符合现行[敏感词]标准《生活饮用水输配水设备及防护材料的安全性评价标准》GB/T17219的规定。
(二)均衡水箱 对游泳池和水上游乐池,当采用逆流式循环供水方式时,应设置均衡水池。并应符合以下相关要求:
Vs=As·hs
Vj=Va+Vf+Vc+Vs
Vj——均衡水池体积(m³)
Va——游泳者入池后所排出的水量(m³),取0.06m³/人
Vf——单个过滤器反冲洗所需水量(m³);单个过滤反冲洗时所需水量(m³)
Vc——充满池水循环净化处理系统管道和设备所需的水量(m³);当补水充足时,可不计此容积
Vs——池水循环净化处理系统运行时所需的水量(m³)
As——水池的水表面面积(㎡)
hs——水池溢流回水时溢流水层厚度(m),可取0.005m~0.010m

均衡水池的构造设计应符合以下要求:
均衡水箱应为封闭型,水池内的高水表面应低于溢流回水管管底 300~600mm;游泳池补充水管控制阀门的出水口应高于池内溢流水面 100mm,并装设倒流防止器;溢流回水管的连接应符合回水口与回水管应采用等程连接或多分路回水管分别接入均衡水池;水池应设检修入孔、溢水管、泄水管和水泵吸水坑;水池应采用不变形和不透水材料建造。池内壁应涂刷或内衬不污染水质的防腐涂料或材料。均衡水池应设多水位程序显示和控制装置;当补水管管底与池内高水位的间距不满足现行[敏感词]标准《建筑给水排水设计规范》GB50015的规定时,接入均衡水池的补水管上应装设真空破坏器;水池应设检修人孔、水泵吸水坑及有防虫网的溢流管、泄水管、通气管、液位管和超高水位报警装置。
(三)常见问题 水箱板材较薄,易生锈、漏水。水箱外爬梯扶手未超出水箱0.5米。液位管安装不规范,无刻度标尺,上下未加角阀固定,没有浮球。水箱底座槽钢未做防锈处理,未加防腐隔层。水箱水位探头通过水箱上方直接进入水箱,露在水箱上端的信号线未采用线槽固定,施工随意,不美观。
(四)解决方案 补充水箱安装大样图对板材规格,外爬梯扶手规格做规定如下方附图所示。补充水箱外围安装大样图集,对液位管、水箱底座槽钢、水箱水位探头的规范标注在下方大样图中。
(五)大样图 1、水箱安装大样图:
2、补充水箱外围水管安装大样图集:
(六)产品技术规范 均衡水箱以混凝土结构制作,必须是有盖的,由土建方建造。指定分包须负责供应及安装水位控制器,出入水管、通气、溢流管、排空管、补水管、不锈钢滤网及预埋件。均衡水箱内、外爬梯由土建或其他承包单位负责供应及安装。
配件需包括:针水位感应器;电磁阀/电动蝶阀;出入水管连接口、通气、溢流管连接口、排空口、补水管连接口、预埋件均为#304不锈钢加工。不锈钢滤网连框架。所有非混凝土制水箱及混凝土游泳池底,须装置 65毫米厚64千克/立方米大的K系数0.035瓦/米度K的玻璃纤维保温绝缘硬板及用0.5mm厚镀锌钢外壳密封,以便容易拆除作为检查和维修之用。外壳的详细结构须呈交工程师批准。若以上所述水箱设置于室外地方,承包商应提供适当之安装,以确保水箱保温的耐用。水管、排气沟及其他管道在设有加保温绝缘的情况下,必须和仪器隔离不少于1米。